RESERVERINGSNR.: ZWSG 12

Prachtige ***/**** vakantiewoning in rustige dorpsdeel Unter den Bodmen van Saas-Grund. 6 mooie woningen. 2-6(7) personen.

Belangrijk!!

U krijgt nu, al bij minimaal 1 overnachting een Saastalcard Inclusief, die nu gratis is.... waarmee u in de zomer gebruik kunt maken van postbus en alle bergbanen (M.U.V. Metro Alpine) in het hele Saastal. In de winter alleen de postbus.

Nietrokerswoning!
Een heel mooi *** en **** vakantiewoning in het dorpsdeel Unter den Bodmen.
Kernwoorden bij deze woning zijn; Rust, Ruimte en Privacy. +/- 1 km. van de bergdorp Saas-Grung en +/- 1.5 km. van het kleine bergdorp Saas-Almagell.
Er is 50 mtr. vanaf de ingang een postbus halte. De postbus brengt u met uw Saastalcard zelfs tot in Saas-Fee. Overal zijn met de Burgerpas de bergbanen gratis. De banen brengen u naar de hoogste en mooiste plaatsen.
Er zijn in deze woning div. woningen. Ruim, modern en van alle gemakken voorzien. Vanaf de ruime balkons heeft u een prachtig uitzicht. Er is een grote gemeenschappelijke tuin met div. speeltoestellen. En natuurlijk is er internet.


 ZWSG 12   ZWSG 12   ZWSG 12   ZWSG 12   ZWSG 12


Studio 1.
       

      Direct reserveren type Studio1



Studio 2.
       

       

      Direct reserveren type Studio2



Woning A.
       

     

      Direct reserveren type A



Woning B.
       

     

      Direct reserveren type B


Woning C.
       

       

      Direct reserveren type C



Woning D.
       

       

Direct reserveren type D



Beschrijving vakantiewoningen:

Moderne en ruim ingerichte woningen. Alle met een balkon op het zuiden.
In alle woningen is bedlinnen, hand, bad en keuken doeken aanwezig.
In alle woningen is er een internet aansluiting. Wasmachine is in huis.
Er kan voor u gewassen worden, na een gemaakte afspraak.
Er zijn gratis parkeer plaatsen.

STUDIO 2 personen 30m2
- Ruime woonkeuken met eethoek en zgn. klapbed voor 2 personen.
- Moderne keuken met o.a. vaatwasser en 4 keramische kookplaten.
- Douche en toilet.
- Groot balkon op het zuiden met tafel en stoelen.
- Event. kinderbed aanwezig.

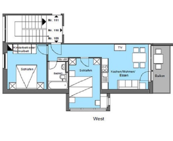
Studio 2 met extra comfort   42 m2     2 personen
- Ruime woonkamer met eethoek en zitgroep.
- Via houten trap naar slaapkamer met 2 persoonsbed.
- Moderne keuken met vaatwasser en 4 keramische kookplaten.
- Douche en toilet.
- Ruim balkon op het zuiden met tafel en stoelen.
- Event. kinderbed aanwezig.

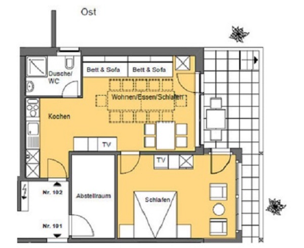
WONING A ♦ 2 kamerwoning. 2- 4 personen. 56m2
- Woonkamer met bank en eethoek.
- Moderne keuken met koelkast, vaatwasser en 4 keramische kookplaten.
- 1 Tweepersoons slaapkamer.
- Badkamer met douche en toilet.
- Groot balkon op het zuiden met tafel en stoelen.
- Event. kinderbed beschikbaar.

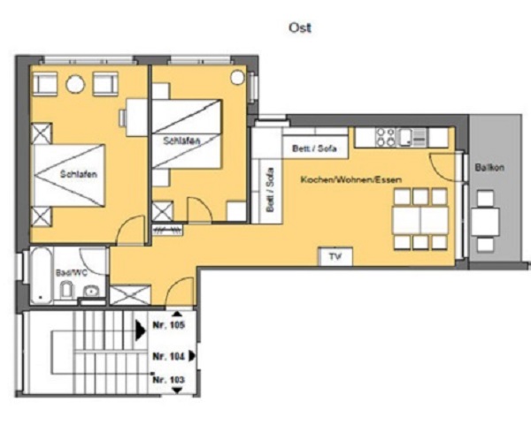
WONING B ♦ 3 kamerwoning. 4 personen. 65m2
- Woonkamer met 2 banken en eethoek.
- Moderne keuken met vaatwasser, koelkast en 4 keramische kookplaten.
- 1 Tweepersoons slaapkamer.
- 1 Kamer met 2 eenpersoons bedden.
- Badkamer met douche en toilet.
- Groot balkon op het zuiden met tafel en stoelen.
- Event. kinderbed beschikbaar.

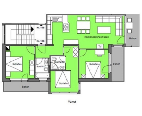
WONING C ♦ 3 kamerwoning. 4-6 personen. 75m2
- ruime woonkamer met bankstel en eethoek.
- Moderne open keuken , vaatwasser en 4 keramische kookplaten.
- 1 Tweepersoons slaapkamers. Event. 2 bedden in huiskamer.
- 1 Slaapkamer met 2 eenpersoons bedden.
- Badkamer met douche en toilet.
- Balkon op het zuiden met tafels en stoelen.
- Extra bed en/of kinderbed is mogelijk.

Woning D ♦ 4 kamerwoning 6 personen event. 1 extra 105m2
- Ruime woonkamer met banstel en eethoek.
- Moderne keuken met kookeiland, vaatwasser en 4 keramische kookplaten.
- 2 Tweepersoons slaapkamers.
- 1 Slaapkamer met 2 eenpersoons bedden.
- Badkamer met douche en toilet.
- 2 Balkons op het zuiden met leuk zitje.
- Extra bed en/ of kinderbed mogelijk


Mooie 3/4 sterren woningen.
Prijzen zijn van Zaterdag tot Zaterdag, of volgens afspraak per week = 7 dagen.
Midweek of weekend is op aanvraag in voor en naseizoen mogelijk. Vraag info!


Prijzen:
STUDIO 1 ♦ 2 personen:
23-08 t/m 06-12 €.495.00.  06-12 t/m 28-02 €.775.00.
28-02 t/m 26-04 €.695.00.   26-04 t/m 20-06 €.495.00.
20-06 t/m 26-10 € 645.00
STUDIO 2 extra ♦ 2 personen:
23-08 t/m 06-12 €.575.00.   06-12 t/m 28-02 €.875.00.
28-02 t/m 26-04 €.795.00.   26-04 t/m 20-06 €.595.00.
20-06 t/m 26-10 € 745.00
Woning A ♦ 2 kamerwoning 56 m2 2 a 4 personen:
23-08 t/m 06-12 €.655.00.  06-12 t/m 28-02 €.995.00.
28-02 t/m 26-04 €.945.00.   26-04 t/m 20-06 €.695.00.
20-06 t/m 26-10 € 895.00
Woning B ♦ 3 kamer 65 m2   2-4 personen:
23-08 t/m 06-12 €.785.00.  06-12 t/m 28-02 €.1195.00.
28-02 t/m 26-04 €.1095.00.   26-04 t/m 20-06 €.795.00.
20-06 t/m 26-10 € 1035.00
Woning C ♦ 3 kamerwoning 75 m2   4-5(6) personen:
23-08 t/m 06-12 €.895.00.  06-12 t/m 28-02 €.1395.00.
28-02 t/m 26-04 €.1295.00.   26-04 t/m 20-06 €.945.00.
20-06 t/m 26-10 € 1225.00
Extra persoon € 20.00 p.p.p.d.
Woning D ♦ 4 kamerwoning 105 m2   4-6(7) personen:
23-08 t/m 06-12 €. 1095.00.   06-12 t/m 28-02 €.1695.00.
28-02 t/m 26-04 €.1595.00.   26-04 t/m 20-06 €.1175.00.
20-06 t/m 26-10 € 1395.00
Extra pers. €. 20.00 p.p.p.d.


Extra Kosten:
Eindschoonmaak:
Studio 1 + 2 Chf.85.00
Woning A Chf. 120.00
Woning B Chf. 145.00
Woning C Chf. 160.00
Woning D Chf. 185.00
Huisdieren Chf. 7.00 per nacht. (Vooraf bespreken)
Internetverbinding Chf. 20.00 per week.
Kurtax:
Zomer: ( vanaf de maand Juni t/m Oktober ), vanaf 6 jaar t/m 15 jaar Chf. 4.00, daarboven Chf 7.00 p.p.p.d.
Winter: ( vanaf maand December t/m +/- eind April )
van 6 t/m 15 jaar Chf. 2.25, daarboven Chf. 4.50 p.p.p.d.

Wassen: Chf. 5.00 per was. Drogen: Chf. 5.00 per keer.
Extra kosten moeten aan eigenaar betaald worden.

Borgsom : n.v.t.
Schoonmaak : Exclusief.
Huisdieren : Toegestaan Chf. 7.00 per nacht.
Bedlinnen : Inclusief.
Keukendoeken : Inclusief.
Handdoeken / Badlakens : Inclusief (beperkt).
Elektra / Gas: Inclusief.
Internet : In alle appartementen aanwezig
Kinderbed en kinderstoel : Aanwezig.

Terug naar Saas-Grund »